Дружище Вам дали сылку в #post135387 на Бестер. Повторяется на ура. Проверена - работает. Всё что надо принтер - програма на пк компас - метал, Ресуем в компас-клеем на метал - режим-собираем= радуемся.
Объявление
Свернуть
Пока нет объявлений.
Антенна 4G
Свернуть
X
-
Недоучка+двоечник))!!!Сообщение от jomy Посмотреть сообщениепопугай пьян, у вас есть много, до сих пор .. ~~
Комментарий
-
Уважаемые Авторы, собрал антенну, вот таким макаром, если видно косяки укажите, пока пластиком не закрываю.
Антенну подключил работает. Подскажите какой программой можно проверить, может тест какой подскажете где рабочий скачать. Не плохо бы определить на какой бок повернуть, наверно внутренностям Юты не все равно.
Комментарий
-
точно .... !!!Сообщение от starik0 Посмотреть сообщениеjomy Is shaped like that hole in the reflector right?
Комментарий
-
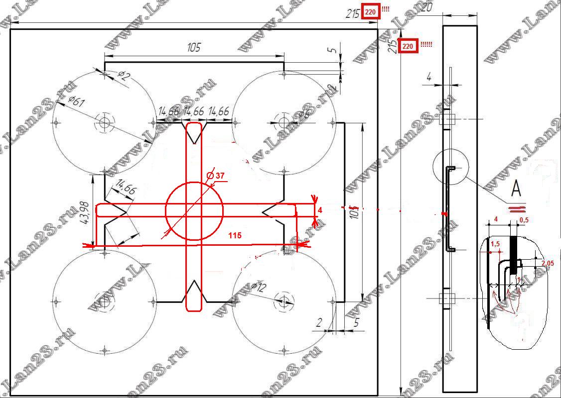
Сообщение от starik0 Посмотреть сообщениеjomy LTE MIMO I made these thumbnails, the size of this cross-piece to cut can calculate?
Комментарий
-
Так что, я стараюсь делать оптимизацию ..!!!Сообщение от starik0 Посмотреть сообщениеjomy
Just Broadband
With the Director, but no cracks in the reflector?
Комментарий


Комментарий