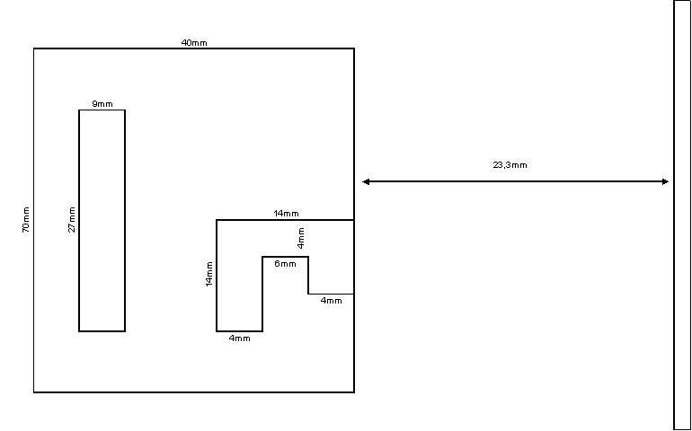
Материал двухсторонный стеклотекстолит.
Объявление
Свернуть
Пока нет объявлений.
5.1-5.9GHz Hi-Gain Antenna
Свернуть
X

Комментарий