Секторная атенна.
Объявление
Свернуть
Пока нет объявлений.
ОБЕЛИСК
Свернуть
X
-
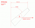
хех, к сожалению не совсем так если взять 1/4 лямбда, то ДН не получится так сжата в вертикальной плоскости, как положено для секторных антенн.Сообщение от mcWitВ ПРИНЦИПЕ это видно из картинок.
Все равно не понятно, зачем 3/4 лямбда, если такую-же диаграмму можно получить на 1/4 пез всякого наклона.
ИМХО хотя ничего особенного или нового там нет, но конструкция очень проста и повторяема, гораздо проще "амоса".
з.ы. я пробовал эту модель в манне, с 1/4 не работает.ОСТОРОЖНО! КУСАЮСЬ!!! :diablo:
Комментарий
-
Ну и как результаты проверки "обелиска"?????Сообщение от hex Посмотреть сообщениеАхз..сегодна какраз хотел проверить,но работа мешает слегка
Стоит с ним морочится ?
Комментарий
-
Сделал я обелиск на 2,4 из стклотекстолита. Заявленым параметрам отвечает. Настройка сводится к получению максимума КСВ при плавном подгибе (3-5 град от оси) к задней стенке. Отрулить максимум можно даже по нетстамблеру , но на расстоянии не менее 20 лямбда (лучше больше), ибо в ближней зоне чудеса творятся)). Очень технологична, можноставить на штамп. Это достоинства. Теперь ложка дёгтя. Нуждается в грозозащите, ибо незамкнутая гальванически. Нуждается в хорошей ветрозащите (парусность) и защите внутренних поверхностей от осадков. Сделал ради эксперимента. У меня дома хот-спот для домашних приподнят, работает на нее на 3дБм из угла дома на 2 этажа. Связь везде без проблем. Технологичность подтверждаю, что получилась с первого раза не кривая, а с инверт амосами 9 досхипор порюсь, не нравится мне их работа.
Предвидя вопросы, сразу говорю, что полевые испытания в городской местности свелись к 1 ясному погожему дню , установке на 9-этажке и стандартному обходу зоны действия с нетстамблером
Комментарий
-
Небольшая поправка: при настройке необходимо добиваться максимума ксв ТОЛЬКО правильно выполненным коаксиально- "волноводным" переходом (т.е. участок кабель-разъем-штырь должен быть выполнен с минимумом неоднородностей, точность в длине штыря). Идеально у меня получилось при напаивании с тыльной (нижней) стороны корпуса гайки кабельного N-коннектора и впаянном в разъем куска кабеля белден Н1000, от уровня "днища"на центральную жилу кабеля посажена медная трубочка 4мм диам. от газовой техники, запаянная сверху . Сгибание трубочки несколько приводит к искажению диаграммы направленности.
Комментарий

Комментарий